Перейти к основному контенту Перейти к левой колонке Перейти к правой колонке
О компании Проекты домов Фотогалерея Дома в рассрочку Технологии строительства Наше видео Контакты

Дома из профилированного бруса ЭКОНОМ

В корзине товаров: 0, на сумму 0 руб.

Брусовой дом Д-65 (6х7)

166
Брусовой дом Д-65 (6х7)
Брусовой дом Д-65 (6х7)
Цена 365000 руб.

Характеристики

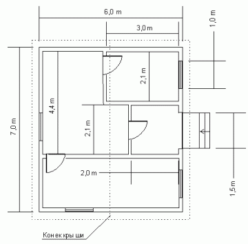
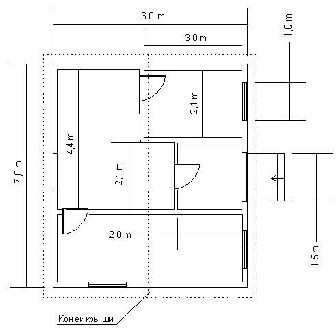
Общая площадь (кв.м.): 42.0
Фундамент: Опорно-столбчатый поверхностный высотой 400 мм из бетонных блоков, установленных в перевязку (блок 200х200х400)
Высота этажей: Высота 1-го этажа – 2,3 м.
Основание дома: Обвязка брусом 100х150
Лаги и балки: Лаги первого этажа и балки перекрытий – брус 50х150 мм через 700 мм
Стены 1 этажа: Профилированный брус 100х150
Полы 1 этажа: Черновой пол – п/м 23-25 мм с использованием ветро-гидроизоляции. Шпунтованная половая доска 28-32 мм
Потолок: Подшивается вагонкой
Устройство крыши: Стропильная система выполняется из обрезной доски 50х150 мм. Обрешетка – обрезная брус 23-25 мм.
Паро-гидро изоляция: Изоспан или его аналоги
Окна: Зимние с двойным остеклением
Двери: Двери Филенчатые.
Кровля: Оцинкованный гофролист
Цена в кредит (первоначальный взнос): без первоначального взноса

Описание

Примечания:

Доставка, разгрузка и монтаж в пределах 80 км от базы (г.Люберцы) включена в стоимость.
Изготовление 10 дней, монтаж 15 дней.

Проекты домов

Корзина заказа

Количество
0 шт.
Сумма
0 руб.
Корзина пуста.

Новинки