Перейти к основному контенту Перейти к левой колонке Перейти к правой колонке
О компании Проекты домов Фотогалерея Дома в рассрочку Технологии строительства Наше видео Контакты

Бани

В корзине товаров: 0, на сумму 0 руб.

Проект бани (Тип Б-41)

21
Проект бани (Тип Б-41)
Проект бани (Тип Б-41)
Цена 307000 руб.

Характеристики

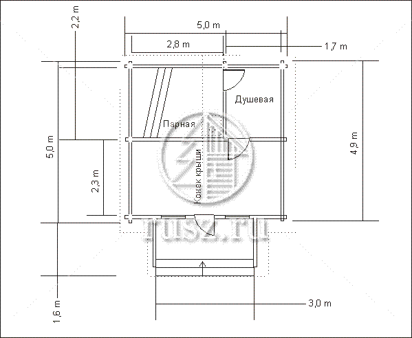
Площадь застройки (м. х м.): 6.64 х 6

Описание

Конструкция: Баня состоит из крыльца, одной комнаты, душевой и парной, общ. пл. 22,7 кв.м. Собрана из бруса хвойных пород 100x150 мм с выпусками по углам - 100 мм с перестилкой растительным мхом или Паклей. Наружная часть стены оструганный брус. Внутренние стены оструганный брус (парная обшита фольгой и осиновой вагонкой). Высота потолков в парной 2,1 м. Толщина стен 92 мм. Потолок утеплен минватой. Крыша двухскатная с чердачным помещением. Высота конька крыши от потолка 1,5 м. Выпуск крыши - 50 см. Кровля - гофролист стальной оцинкованный. Пол - двойной, утепленный (черновой + половая доска 36 мм). Окна одностворчатые двухрамные на петлях. В комплект поставки входят фундаментные блоки 20x20x40 в количестве 42 шт. и необходимая монтажная арматура.

Примечания:

Доставка, разгрузка и монтаж в пределах 100 км от базы, включена в стоимость.
Изготовление 20 дней, монтаж 10 дней.

Проекты домов

Корзина заказа

Количество
0 шт.
Сумма
0 руб.
Корзина пуста.

Новинки