Перейти к основному контенту Перейти к левой колонке Перейти к правой колонке
О компании Проекты домов Фотогалерея Дома в рассрочку Технологии строительства Наше видео Контакты

Каркасные дома ЭКОНОМ

В корзине товаров: 0, на сумму 0 руб.

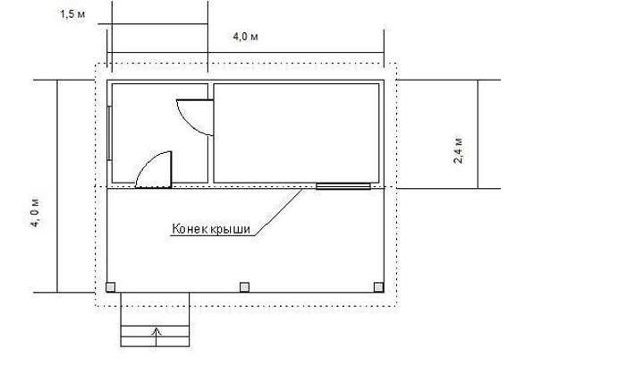
Садовый дом СД-18 (4х4)

258
Садовый дом СД-18 (4х4)
Садовый дом СД-18 (4х4)
Цена 99000 руб.

Характеристики

Общая площадь (кв.м.): 16.0
Фундамент: Опорно-столбчатый поверхностный высотой 400 мм из бетонных блоков, установленных в перевязку (блок 200х200х400)
Высота этажей: Высота 1-го этажа – 2,1 м.
Основание дома: Обвязка брусом 100х150
Лаги и балки: Лаги первого этажа и балки перекрытий – брус 50х150 мм через 800 мм.
Стены 1 этажа: Каркас наружных угловых стен 50х50 мм, каркас боковых стен 50х50 мм с двух сторон обшит вагонкой 18 мм. Утепление – минеральная вата 50 мм с использованием ветро-гидроизоляции.
Полы 1 этажа: Черновой пол – п/м 23-25 мм с ветро-гидроизоляции. Шпунтованная половая доска 28-32 мм
Потолок: Подшивается вагонкой
Устройство крыши: Стропильная система выполняется из бруса 50х100мм. Обрешетка – обрезная доска 23-25 мм.
Паро-гидро изоляция: Изоспан или его аналоги
Окна: Двухстворчатые с одинарным остеклением
Двери: Двери Филенчатые.
Кровля: Оцинкованный гофролист
Цена в кредит (первоначальный взнос): без первоначального взноса

Описание

Примечания:

Доставка, разгрузка и монтаж в пределах 80 км от базы, включена в стоимость.
Изготовление 12 дней, монтаж 3 дня.


Проекты домов

Корзина заказа

Количество
0 шт.
Сумма
0 руб.
Корзина пуста.

Новинки