Перейти к основному контенту Перейти к левой колонке Перейти к правой колонке
О компании Проекты домов Фотогалерея Дома в рассрочку Технологии строительства Наше видео Контакты

Бани

В корзине товаров: 0, на сумму 0 руб.

Проект бани (Тип Б-47)

43
Проект бани (Тип Б-47)
Проект бани (Тип Б-47)
Цена 247000 руб.

Характеристики

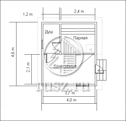
Площадь застройки (м. х м.): 4 х 4.6

Описание

Конструкция: Баня состоит из комнаты, душевой и парной, общ. пл. 18,4 кв.м. Собрана из бруса хвойных пород 100x150 мм с перестилкой растительным мхом или паклей. Наружная часть стены оструганный брус. Внутренние стены оструганный брус (парная обшита осиновой вагонкой). Высота потолков в парной 2,3 м.. Толщина стен 92 мм. Потолок утеплен минватой. Крыша двухскатная без чердачного помещения. Высота конька крыши от потолка 30 см. Выпуск крыши - 10-15 см. Кровля - лист стальной оцинкованный. Пол - двойной (черновой - необрезная доска, чистовой - половая доска 32 мм). Окна двухстворчатое и одностворчатое двухрамные на петлях. В комплект поставки входят фундаментные блоки 20x20x40 в количестве 24 шт. и необходимая монтажная арматура.

Примечания:

Доставка, разгрузка и монтаж в пределах 80 км от базы, включена в стоимость.
Изготовление 15 дней, монтаж 5 дней.

Проекты домов

Корзина заказа

Количество
0 шт.
Сумма
0 руб.
Корзина пуста.

Новинки